松阪市湊町 
【完売御礼】
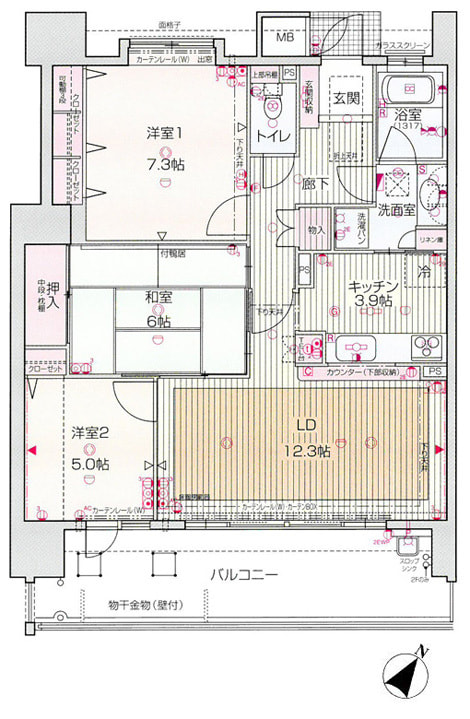
<物件概要>
ローレルコート松阪 706号室
所在地:松阪市湊町184番地6
間取り:3LDK
築年月:2003年2月(築21年)
階建/階:15階建/7階部分
建物構造:SRC(鉄骨・鉄筋コンクリート造陸屋根15階建)
現状:空家
設備:電気(中部電力)ガス(都市ガス)
水道(公営)汚水(公共下水道)
管理形態:全部委託
管理方式:日勤管理
取引形態:仲介
<周辺施設>
近鉄・JR松阪駅 約470m
市立幸小学校 約1030m
市立殿町中学校 約1170m
ぎゅーとら長月店 約470m
済生会松阪総合病院 約920m
松阪市民病院 約1010m
<その他>
現状渡し(室内清掃済)
管理費 10,540円/月
修繕積立金 9,280円/月
ケーブルテレビ 550円/月
自治会費 1,000円/半年
一部リフォーム済
■お問い合わせは 稲葉不動産 電話:0598-20-8113


・・・・・・・・・・・・・・・・・・・・・・
松阪市大黒田町
![]()
価格:1,670万円
面積:334.89㎡(101.30坪)
<物件概要>
所 在 地:松阪市大黒田町
地目:宅地
都市計画:市街化区域
用途地域:第二種住居地域
地域建ぺい率:60% 容積率:200%
設備:電気(中部電力)ガス(プロパンガス)
水道(松阪市公営)汚水(公共下水道)
現状:建物あり(更地渡し)
取引形態:仲介
<周辺施設>
幸小学校 約500m
殿町中学校 約890m
川井町パワーセンター 約1200m
三重交通 西林停 約5m
松阪駅 約1500m
<その他>
現状渡し
■お問い合わせは 稲葉不動産 電話:0598-20-8113
・・・・・・・・・・・・・・・・・・・・・・
松阪市立田町
![]()
価格:645万円
面積:429㎡(約129.77坪)
<物件概要>
所 在 地:松阪市立田町
地目:雑種地 都市計画:市街化区域 用途地域:調整区域
建ぺい率:60% 容 積 率:200% 現状:更地
設備:電気(中部電力)ガス(プロパン)水道(公営)
汚水(個別合併浄化槽)
接道:公道東側幅員約7mに約28m接道
取引形態:仲介
<その他> 更地渡し
■お問い合わせは 稲葉不動産 電話:0598-20-8113




